HOT OFERTA!
TYLKO W PEPPERHOUSE!
NAJWIĘKSZE ATUTY:
– Dogodna lokalizacja we Władysławowie , zaledwie 5 minut od portu Władysławowo i 7 minut od plaży
– Energooszczędne domy z wysokiej jakości materiałów
– Kameralne osiedle z zachowaną zielenią i wieloletnimi drzewami
– Funkcjonalne układy pomieszczeń oraz własne miejsca parkingowe i ogródki
– Natychmiastowe wydanie
OPIS INWESTYCJI:
Kameralne, osiedle nowoczesnych domów w zabudowie szeregowej, stworzone z myślą o rodzinach ceniących komfort i bliskość natury. Teren jest ogrodzony, posiada wjazd z bramą otwieraną na pilota. Inwestycja znajduje się we Władysławowie, jednej z najbardziej znanych nadmorskich miejscowości, zapewniając idealne połączenie ciszy i spokoju z dogodnym dostępem do miejskich udogodnień. Domy o powierzchni 49 m2 wyróżniają się nowoczesnym designem, funkcjonalnymi układami pomieszczeń oraz zastosowaniem energooszczędnych technologii, co pozwala zminimalizować koszty utrzymania. Każdy dom posiada miejsce postojowe oraz własny ogródek, zapewniając komfort codziennego funkcjonowania.
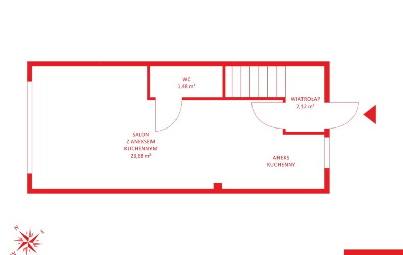
Układ pomieszczeń:
Salon wraz z aneksem kuchennym
WC,
Wiatrołap i klatka schodowa,
Taras z ogródkiem.
PIĘTRO:
Dwie sypialnie,
Łazienka,
Korytarz.
Dodatkowe informacje:
Ogrzewanie: gazowe, piec dwufunkcyjny
Czynsz: miesięcznie około 250-300zł
Utwardzone miejsce parkingowe
Dzięki zastosowaniu nowoczesnych, energooszczędnych technologii domy są przyjazne dla środowiska i ekonomiczne w utrzymaniu. To idealna propozycja dla osób poszukujących komfortowego i spokojnego miejsca do życia w otoczeniu natury.
Zapraszam na prezentację.
























