Na sprzedaż dom w zabudowie bliźniaczej w Rumi. Praktyczna piwnica z garażem i świetne zaplecze usługowo‑edukacyjne w zasięgu kilku minut – wszystko, czego potrzeba rodzinie.
Powierzchnia użytkowa: 136,32 m2
Układ:
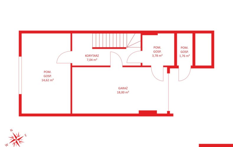
– Piwnica (45,20 m2): garaż 18,00 m2, kilka praktycznych pomieszczeń gospodarczych idealnych na warsztat, sezonowe przechowywanie lub domową siłownię.
– Parter (48,95 m2): wiatrołap, WC, wygodna kuchnia 9,31 m2, salon z jadalnią 22,91 m2; komunikacja i schody zaprojektowane tak, by oszczędzać przestrzeń.
– Piętro (42,17 m2): trzy ustawne sypialnie, duża łazienka 7,46 m2, korytarz ze schodami; układ zapewnia prywatność i komfort dla domowników.
Standard i technologia:
Ogrzewanie: podłogowe w całym domu, gazowe, piec dwufunkcyjny – ekonomiczne i wygodne.
Termika: dach ocieplony wełną mineralną, ściany izolacja styropian 15 cm – stabilna temperatura i niższe rachunki.
Stolarka: okna 3‑szybowe – komfort akustyczny i energooszczędność.
Dach: płaski – nowoczesna linia budynku, łatwość serwisu.
Stan prawny: dom jednorodzinny w zabudowie bliźniaczej; projekt przewiduje klarowny podział stref i pełną funkcjonalność każdego poziomu.
Dodatkowe udogodnienia: praktyczna komunikacja, wiele miejsc do przechowywania, garaż w bryle budynku, duże przeszklenia w strefie dziennej.
Lokalizacja
Kameralny charakter ulicy – komfort codziennego życia bez miejskiego zgiełku.
Blisko codziennych udogodnień: sklepy, punkty usługowe, szkoły i przedszkola w promieniu kilku minut jazdy.
Dobre połączenia z Trójmiastem: szybki wyjazd w kierunku Gdyni oraz dostęp do SKM i głównych tras dojazdowych.
Rekreacja w zasięgu ręki: tereny spacerowe i zielone okolice, idealne na aktywny wypoczynek po pracy.
Szkoły:
– Przedszkole Pod Topolą, Leśna 4 – ok. 850 m.
– Szkoła Podstawowa nr 8, Marii Rodziewiczówny 10 – ok. 900 m.
Supermarkety:
– Lidl, Pomorska 6 – ok. 1,1 km.
– Kaufland, Dąbrowskiego 70 – ok. 2,1 km.
– Auchan, Grunwaldzka 108 – ok. 3,2 km.
Dojazd i komunikacja:
– Stacja kolejowa Rumia – ok. 2,3 km. SKM zapewnia szybki dojazd do centrum Gdyni (ok. 18 minut), do Sopotu (ok. 29 minut), do Gdańska (ok. 50 minut).
– Przystanki autobusowe przy ul. Gdańskiej.
Zapraszam na prezentację
Tomasz Hulim
Pepper House
Oferta nr PH411678























