REZERWACJA LOKALU !
Ostatnia szansa zakupu – zostało już tylko jedno mieszkanie o takim rozkładzie.
Osiedle ogrodzone, z windami, halą garażową – a to wszystko na kameralnym osiedlu.
Numer lokalu: M18
Dowolna aranżacja nieruchomości – możliwość zrobienia 4 lub 5 pokojowego mieszkania
ZADZWOŃ I DOWIEDZ SIĘ JAKO PIERWSZY o nowym projekcie aranżacyjnym.
PIWNICA W CENIE MIESZKANIA !
Miejsce w hali garażowej: 20,000 tys
Reda to nowoczesne miasto, które stanowi jedno z miast Małego Trójmiasta Kaszubskiego oraz jest częścią aglomeracji Trójmiasta. Wygodna sypialnia większych miast, takich jak Gdynia czy Wejherowo z dogodna komunikacją miejską. Samochodem natomiast możemy bardzo szybko przedostać się do Wejherowa, całego Trójmiasta, a nawet na Półwysep Helski.
Wysokiej jakości, naturalne materiały budowlane użyte do wykończenia elewacji i przestrzeni wspólnych w budynku podnoszą jakość codziennego życia mieszkańców. Szczególnie doceniają oni funkcjonalność i estetykę obszernych, doskonale doświetlonych klatek schodowych. W otoczeniu obiektów wkomponowana zostanie mała architektura i starannie wyselekcjonowana zieleń.
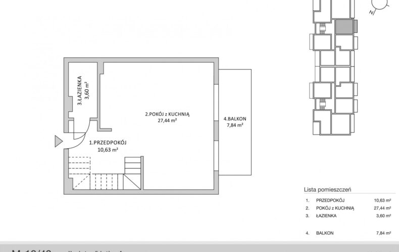
Do sprzedania dwu poziomowe mieszkanie w stanie deweloperskim usytuowane od strony południowo-zachodniej – wydanie w terminie do 30 stycznia 2019r
W skład mieszkania wchodzi:
Poziom 1:
Salon z aneksem kuchennym o powierzchni aż 27,44m2 hall z wnęka na szafę pod zabudowę (10,63m2) oraz łazienka o powierzchni 3,60m2.
Mieszkanie posiada duży balkon o powierzchni 7,92m2
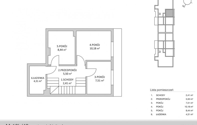
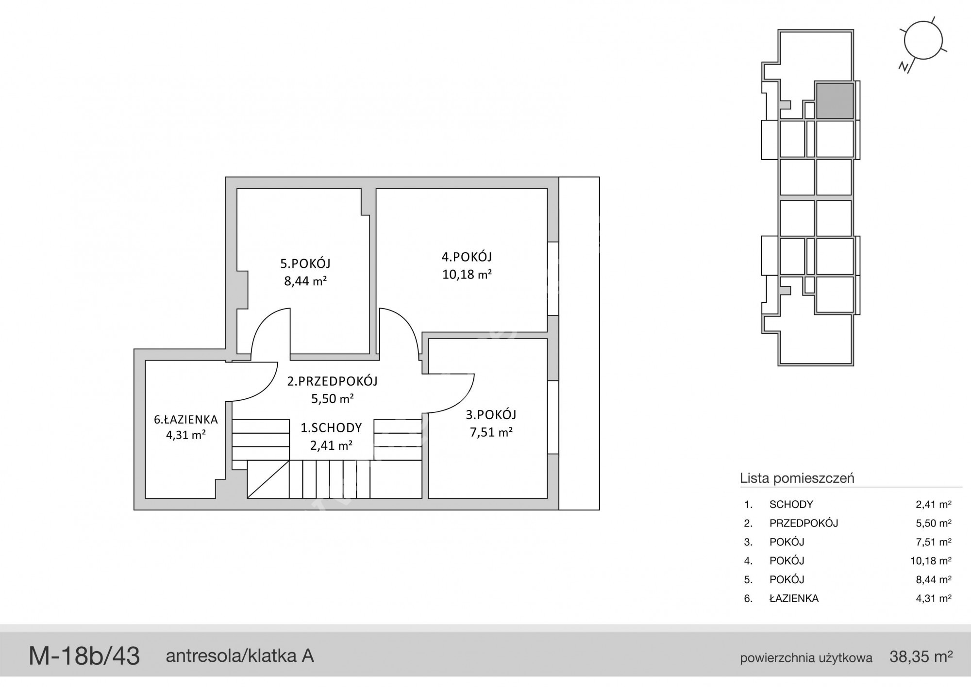
Poziom 2
Trzy sypialnie (10,18m2, 8,44m2, 7,51m2)
Łazienka (4,31m2)
Hall (5,50m2)
Dowolna aranżacja ścianek działowych.
W cenie mieszkania wliczona armatura ( prysznic,umywalka, wc, baterie łazienkowe…).
KOMÓRKA LOKATORSKA W CENIE DO KAŻDEGO MIESZKANIA !!
BUDYNEK WYPOSAŻONY W CICHOBIEŻNE WINDY !
Wartością dodaną nieruchomości jest, iż znajduję się na osiedlu zamkniętym co sprawia, iż przyszły właściciel może czuć się bezpiecznie i korzystać z uroków przepięknej lokalizacji. Właśnie goszcząca cisza w usytuowaniu mieszkania jest dodatkowym atutem tej nieruchomości, mimo iż lokal znajduje się zaledwie parę kilometrów od centrum miasta, donośny zgiełk ulicy, czy hałas nie będzie niepokoić nowych właścicieli. Możesz korzystać do woli z luksusu przestrzeni terenów zielonych oraz osiedla, na którym Twoje dziecko bez obaw może spędzać bezpiecznie swój beztroski czas
Na etapie budowy istnieje możliwość aranżacja ścianek działowych – bez dodatkowych kosztów.
Dodatkowo w cenie lokalu miejsce postojowe ogólnodostępne.
Odbiory lokali do 30 stycznia 2019r.


































