OSTATNIE WOLNE LOKALE NA INWESTYCJI!
Zadzwoń umów się do biura w celu poznania oferty
Osiedle ogrodzone, z windami, halą garażową – a to wszystko na kameralnym osiedlu.
Numer lokalu: M7 – mieszkanie z tarasem ponad 16m2
Reda to nowoczesne miasto, które stanowi jedno z miast Małego Trójmiasta Kaszubskiego oraz jest częścią aglomeracji Trójmiasta. Wygodna sypialnia większych miast, takich jak Gdynia czy Wejherowo z dogodna komunikacją miejską. Samochodem natomiast możemy bardzo szybko przedostać się do Wejherowa, całego Trójmiasta, a nawet na Półwysep Helski.
Wysokiej jakości, naturalne materiały budowlane użyte do wykończenia elewacji i przestrzeni wspólnych w budynku podnoszą jakość codziennego życia mieszkańców. Szczególnie doceniają oni funkcjonalność i estetykę obszernych, doskonale doświetlonych klatek schodowych. W otoczeniu obiektów wkomponowana zostanie mała architektura i starannie wyselekcjonowana zieleń.
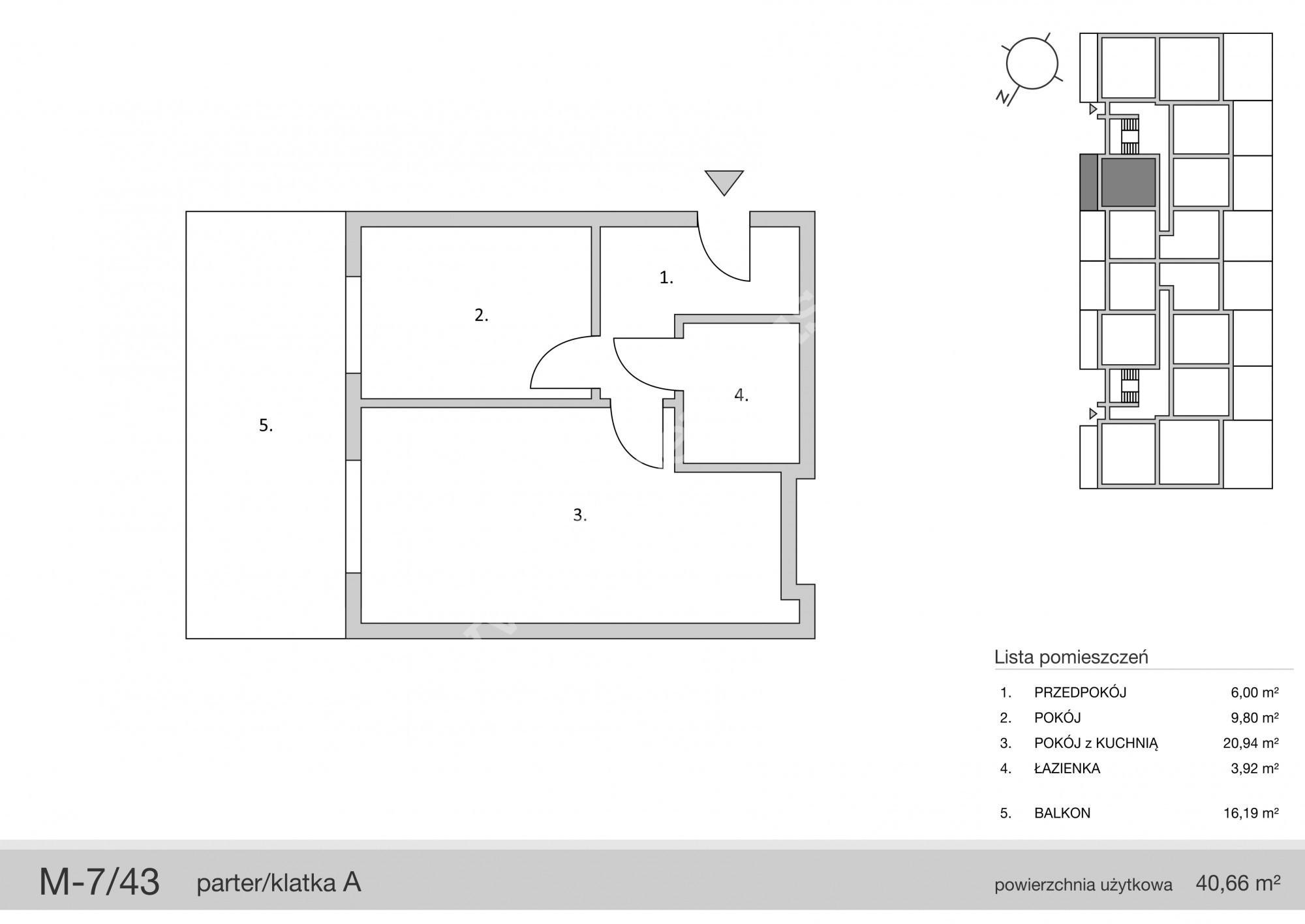
Do sprzedania mieszkanie dwu pokojowe w stanie deweloperskim usytuowane od strony wchodniej z tarasem o powierzchni 16,19m2- wydanie w terminie do 30 stycznia 2019r
W skład mieszkania wchodzi: salon z aneksem kuchennym o powierzchni 20,82m2 oddzielna sypialnia 9,79m2 hallu z wnęka na szafę pod zabudowę (6m2) oraz łazienki o powierzchni 3,92m2.
Wartościa dodaną jest taras o powierzchni aż 16,19m2
Dowolna aranżacja ścianek działowych.
W cenie mieszkania wliczona armatura ( prysznic,umywalka, wc, baterie łazienkowe…).
KOMÓRKA LOKATORSKA W CENIE DO KAŻDEGO MIESZKANIA !!
BUDYNEK WYPOSAŻONY W CICHOBIEŻNE WINDY !
Wartością dodaną nieruchomości jest, iż znajduję się na osiedlu zamkniętym co sprawia, iż przyszły właściciel może czuć się bezpiecznie i korzystać z uroków przepięknej lokalizacji. Właśnie goszcząca cisza w usytuowaniu mieszkania jest dodatkowym atutem tej nieruchomości, mimo iż lokal znajduje się zaledwie parę kilometrów od centrum miasta, donośny zgiełk ulicy, czy hałas nie będzie niepokoić nowych właścicieli. Możesz korzystać do woli z luksusu przestrzeni terenów zielonych oraz osiedla, na którym Twoje dziecko bez obaw może spędzać bezpiecznie swój beztroski czas
Na etapie budowy istnieje możliwość aranżacja ścianek działowych – bez dodatkowych kosztów.
Dodatkowo w cenie lokalu miejsce postojowe ogólnodostępne.
Możliwość dokupienia miejsca postojowego w hali garażowej: cena 20,000zł.
Zakończenie budowy Listopad 2018 – odbiory lokali do 30 stycznia 2019r.

































