OFERTA DOSTĘPNA W PEPPER HOUSE
Na sprzedaż dwie działki położne w Przywidzu o łącznej powierzchni ponad 13000 m2.
ATUTY NIERUCHOMOŚCI:
– świetna lokalizacja, otoczenie lasów i jezior,
– prawomocne pozwolenie na budowę domu opieki,
– zakładanych miesięczny przychód to 350tys. zł.
CHARAKTERYSTYKA:
Dwie działki położone w Przywidzu, o powierzchni 4144m2 oraz 9160m2 – łączna powierzchnia 13304m2.
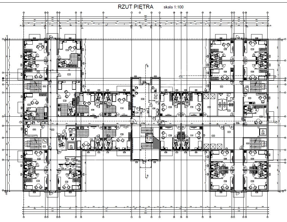
Działki objęte są prawomocnym pozwoleniem na budowę DOMU LECZNICZO OPIEKUŃCZEGO, który zapewni wysoko specjalistyczną opiekę pensjonariuszom. Projekt zakłada powstanie budynku o wysokim standardzie wraz pełną infrastrukturą. Jego łączna powierzchnia użytkowej ma wynosić ok. 3000m2. Do dyspozycji będzie 11 pokojów jednoosobowych oraz 21 pokojów dwuosobowych – łączna liczba pensjonariuszy przewidziana jest na 55 osób. Biznes plan zakłada przychód na poziomie 350tys. zł. miesięcznie.
Działki położone na terenie objęty miejscowym planem zagospodarowania przestrzennego w strefie 02-U teren zabudowy usługowej
oraz 05-MN/U teren zabudowy mieszkaniowej jednorodzinnej usługowej
LOKALIZACJA:
Działki położone są w urokliwej okolicy, na terenie objętym ochroną krajobrazu. Cicha i spokojna okolica, otoczona lasami, w sąsiedztwie kilku jezior. Nieruchomość znajduje się zaledwie 30 min jazdy samochodem od Gdańska i Kościerzyny.
Zapraszam na prezentację
Numer oferty: PH137218
Opiekun oferty: Rafał Milan

















