OFERTA DOSTĘPNA W PEPPER HOUSE
ATUTY NIERUCHOMOŚCI
– sąsiedztwo lasu i łąk,
– cicha okolica,
– łatwy dojazd do centrum Gdańska – ok. 20 minut jazdy samochodem,
– świetna cena,
– możliwość zakupu kilku działek
CHARAKTERYSTYKA
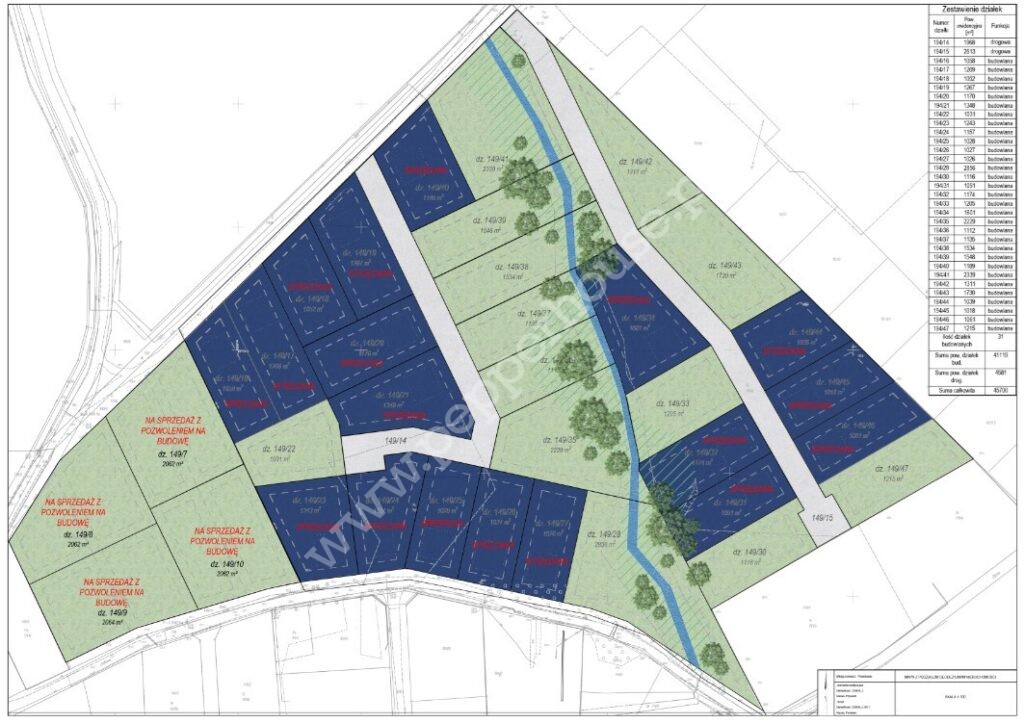
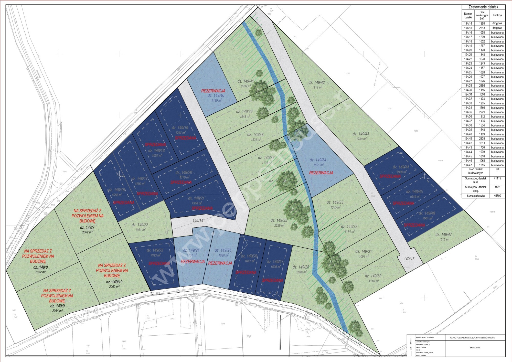
Na sprzedaż działka 149/22, objęta jest Miejscowym Planem Zagospodarowania Przestrzennego (UCHWAŁA NR LI/446/2023 RADY GMINY PRZYWIDZ)
Przeznaczenie terenu: teren zabudowy mieszkaniowej jednorodzinnej.
Intensywność zabudowy: maksymalna – 0,4;
Maksymalna powierzchnia zabudowy: 30%;
Minimalny udział procentowy powierzchni biologicznie czynnej: 50%;
Maksymalna wysokość zabudowy: dla budynków głównych: nie więcej niż 10,0 m od kalenicy do poziomu gruntu (maksymalnie
2 kondygnacje nadziemne, w tym poddasze użytkowe);
Dopuszcza się podpiwniczenie;
Formy zabudowy: wolnostojące; bliźniacze;
W sąsiedztwie znajduje się kilkanaście działek, będących również w sprzedaży. Całość ma stworzyć kameralne osiedle komfortowych domów. Dobry dojazd do działek, drogą utwardzoną. Media w drodze. Dookoła nowoczesna, rozwijająca się zabudowa jednorodzinna.
Pomlewo to miejscowość położona ok. 10 minut drogi od Kolbud i ok. 25 minut od Gdańska. W Kolbudach mamy pełne zaplecze handlowo-usługowe: dyskont, pocztę, małe usługi, rynek z produktami rolniczymi. W odległości kilku kilometrów kilka jezior m.in. jezioro Przywidzkie Wielkie, jezioro Głębokie, jezioro Ząbrsko, jezioro Łapińskie. Cała okolica otoczona jest kaszubskimi lasami, znajdziemy tam mnóstwo terenów rekreacyjnych.
Dodatkowo proponujemy Państwu możliwość postawienia domu całorocznego o powierzchni użytkowej 38,80m2 w cenie 230tys. zł. (stan deweloperski rozszerzony: wykończone wnętrze z wszystkimi instalacjami, ogrzewaniem, podłogą, schodami oraz kompletnie urządzoną łazienką). Dostępne są też domy o powierzchni 83,20m2 oraz 127,30m2)
Po więcej informacji zapraszam do kontaktu:
Opiekun oferty Rafał Milan
Numer oferty: PH629979



















