OSTATNIA DOSTĘPNA NIERUCHOMOŚĆ!
Na sprzedaż unikalne, dwupoziomowe mieszkanie w stanie deweloperskim!
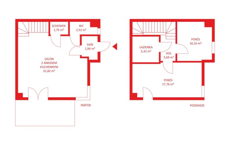
Mieszkanie o powierzchni 74,95m składa się z dwóch poziomów:
– na parterze znajduje się: salon z kuchnią (31,82m), pomieszczenie gospodarcze (1,75m), wc (2.53m) i hol (1,91m)
– na piętrze znajdują się dwie sypialnie, łazienka (5,32m) i hol (3.69m)
– poddasze: pomieszczenie gospodarcze.
Dom zbudowany jest z cegły ceramicznej, na dachu dachówka betonowa firmy Bras, okna trójszybowe KMT, drewniane schody, na podłogach wylewki, ogrzewany piecem gazowym dwufunkcyjnym, w standardzie grzejniki oraz instalacja na strychu, a także ogrzewanie podłogowe i przyłącze do kominka.
Niewątpliwym atutem nieruchomości jest przynależny ogród o powierzchni 250m2, a także ekspozycja południowo-wschodnia.
Nieruchomość usytuowana w miejscowości Kosakowo, w odległości 20 min samochodem od centrum Gdyni, w otoczeniu nowych domów jednorodzinnych. Ogromnym atutem jest bardzo duża ilość terenów spacerowych, las, a także oddalona o 3 km plaża i morze. W okolicy również sklepy spożywcze, Biedronka, Netto, restauracje, siłownia, różnego rodzaju lokale usługowe, szkoła podstawowa, gimnazjum i basen, a także ośrodek zdrowia. Kosakowo jest miejscowością, położoną atrakcyjnie, ze względu na bliskość do Zatoki i Gdyni, nowo powstałe gimnazjum i basen, jak również przedszkole, pasaż handlowo usługowy.
Zapraszam na prezentację!
Michał Grześkowiak




















