OFERTA DOSTĘPNA TYLKO W PEPPER HOUSE!!!
Na sprzedaz mieszkanie w kameralnej kamienicy o powierzchni 86,55m2 w dobrze skomunikowanej dzielnicy Gdyni Grabówek.
LOKALIZACJA:
Gdynia Grabówek, ul. Mireckiego – spokojna, zielona okolica. W promieniu 5 minut spacerem: sklepy, szkoła, przystanek zkm, przychodnia oraz las.
PODSTAWOWE INFORMACJE:
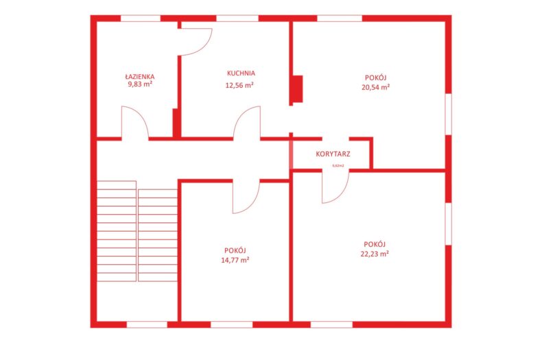
powierzchnia: 86,55 m²
liczba pokoi: 3 (z możliwością uzyskania 4)
piętro: 2 z 2
rok budowy: 1930
typ budynku: ocieplona kamienica
ogrzewanie: gazowe
stan: do remontu
Mieszkanie jest przestronne, dobrze doświetlone i przytulne. Wysokość pomieszczeń 2,20 m wpływa na niższe koszty ogrzewania. Budynek jest kameralny, z małą wspólnotą i niskimi opłatami.
WYKONANE PRACE:
nowe okna
nowe nawiewniki
nowy piec gazowy dwufunkcyjny z zamkniętą komorą spalania i centralnym czujnikiem
wymieniona instalacja elektryczna w kuchni i łazience
nowa skrzynka elektryczna
ZAKRES REMONTU:
kuchnia i łazienka do kompleksowego remontu (w tym podłoga i fragment stropu)
elektryka w pokojach do wymiany
drzwi wejściowe – projekt i drzwi są gotowe, czekają na montaż
jedno pomieszczenie z niższą futryną – możliwość podniesienia przy remoncie
PODSUMOWANIE:
✔ świetna lokalizacja
✔ solidna kamienica z historią
✔ nowe okna i piec
✔ niskie koszty utrzymania
✔ ogromny potencjał aranżacyjny
✔ możliwośc adaptacji strychu
✔ kameralna liczba mieszkań
✔ pełna własnosć
Mieszkanie ma swoje lata, ale też serce, historię i przestrzeń, której dziś trudno szukać w nowych inwestycjach. Idealna propozycja dla osób, które chcą stworzyć wnętrze „po swojemu” w świetnej lokalizacji.
To propozycja dla osób prywatnych jak i inwestorów, którzy widzą dalej niż „stan do remontu” i szukają mieszkania z charakterem w jednej z najlepiej skomunikowanych dzielnic Gdyni.
ZAPRASZAM NA PREZENTACJĘ ORAZ PO WIĘCEJ INFORMACJI!
Agnieszka Poniatowska
Biuro Nieruchomości
Pepper House
PH304557









































































