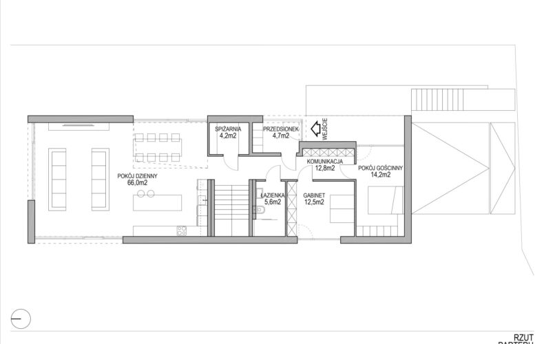
Na zamówienie właściciela sporządzona została, przez znanego trójmiejskiego architekta, koncepcja domu jednorodzinnego pokazująca potencjał działki. Dom o powierzchni całkowitej wraz z podziemną kondygnacją z dwustanowiskowym garażem to powierzchnia prawie 300 m2. Z tego część mieszkalna (bez garażu, kotłowni, piwnicy etc) przewiduje powierzchnię 188,3 m2 powierzchni użytkowej (216,8 m2 całkowitej/po podłodze).
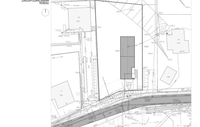
Grunt usytuowany na lekkim wzniesieniu dzięki czemu 'góruje’ nad sąsiadującymi domami. Od północy działki fenomenalny widok na las (gwarantowany dzięki ustaleniom planu miejscowego zakazującym zabudowy na obszarze sąsiadującym z przedmiotową działką od północy).
Działka budowlana objęta MPZP – symbol planu 55 MN1
Ustalenia planu:
– Dopuszcza się wydzielenie w budynkach nie więcej niż dwóch lokali mieszkalnych albo jednego lokalu mieszkalnego i lokalu użytkowego o powierzchni całkowitej nieprzekraczającej 30% powierzchni całkowitej budynku
ZASADY KSZTAŁTOWANIA ZABUDOWY I ZAGOSPODAROWANIA TERENU
a) intensywność zabudowy – do 0,35, przy czym do obliczeń na terenie 055 MN1 nie uwzględnia się oznaczonego na rysunku planu terenu wyłączonego z zabudowy, przeznaczonego do zagospodarowania w formie zieleni ekologicznej;
b) wysokość zabudowy – do 9,0 m, do 1 kondygnacji nadziemnej + poddasze użytkowe;
c) rodzaj dachu – stromy, nachylenie połaci od 35° do 45° dopuszcza się adaptację istniejących
dachów o innych nachyleniach;
d) obowiązują nieprzekraczalne linie zabudowy wg. rysunku planu
e) powierzchnia zabudowy – do 0,25 powierzchni działki, przy czym do obliczeń na terenie
055 MN1 nie uwzględnia się oznaczonego na rysunku planu terenu wyłączonego z zabudowy,
przeznaczonego do zagospodarowania w formie zieleni ekologicznej;
f) powierzchnia biologicznie czynna – min. 50% powierzchni działki








































