!! DOSTĘPNE WYŁĄCZNIE U NAS !!
ATUTY:
– kameralne, zamknięte osiedle zapewniające wysoki poziom prywatności i bezpieczeństwa
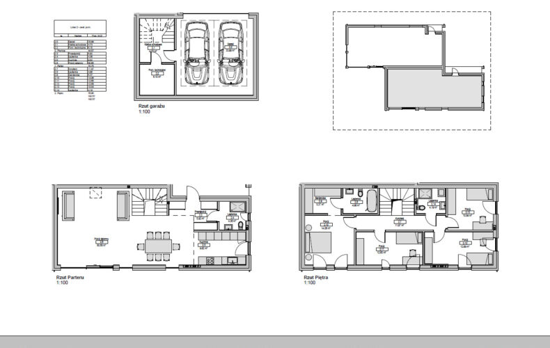
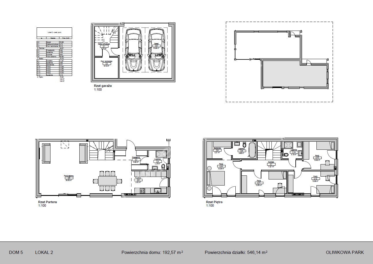
– elastyczny układ wnętrza – możliwość aranżacji 4-6 pokoi
– komfortowy, dwustanowiskowy garaż (poziom -1)
– ekologiczne rozwiązania: instalacja fotowoltaiczna oraz pompa ciepła
– słoneczne tarasy
– podłączenie do kanalizacji miejskiej
– duże przeszklenia gwarantujące doskonałe doświetlenie wnętrz
LOKALIZACJA:
Oliwkowa Park to nowoczesna inwestycja domów jednorodzinnych w zabudowie bliźniaczej, położona w spokojnej, a jednocześnie dynamicznie rozwijającej się dzielnicy Gdańska – Jasień. Spójna architektura oraz przemyślany układ osiedla tworzą zamkniętą, uporządkowaną enklawę, idealną dla rodzin poszukujących komfortu i prywatności.
Lokalizacja zapewnia szybki i wygodny dojazd do kluczowych punktów Trójmiasta – obwodnica znajduje się zaledwie 4 minuty od inwestycji, centrum Gdańska w zasięgu około 10 minut, a Wrzeszcz około 15 minut. To doskonałe połączenie spokojnego otoczenia z pełną dostępnością miejskiej infrastruktury.
W najbliższym sąsiedztwie znajduje się bogate zaplecze handlowo-usługowe, w tym supermarkety, nowoczesna szkoła (otwarta w 2019 roku), placówki medyczne i weterynaryjne, centrum stomatologiczne, a także liczne punkty usługowe – salony kosmetyczne, fryzjerskie oraz barbershopy. Dodatkowym atutem jest dobra dostępność komunikacji miejskiej, co zapewnia wygodę również osobom niekorzystającym z samochodu.
Okolica łączy w sobie wygodę życia w mieście z bliskością terenów zielonych – liczne ścieżki spacerowe i rowerowe sprzyjają aktywnemu wypoczynkowi i rekreacji na świeżym powietrzu. Niska zabudowa oraz uporządkowany charakter dzielnicy tworzą przyjazne, bezpieczne środowisko do życia, a wydzielone ogrody pozwalają cieszyć się prywatną przestrzenią i komfortem każdego dnia.
TECHNOLOGIA I STANDARD WYKONANIA:
Budynki zostały zaprojektowane z myślą o trwałości, komforcie i energooszczędności:
– posadowienie na płycie fundamentowej
– ściany fundamentowe z bloczków betonowych (24 cm), ocieplone Styrodurem XPS (10 cm)
– ściany zewnętrzne z bloczków Silka, ocieplone styropianem grafitowym (15 cm)
– konstrukcja nośna: słupy żelbetowe (beton B25)
– stropy żelbetowe monolityczne (grubość 20 cm, beton B25)
– schody żelbetowe
– ściany wewnętrzne z bloczków Silka (12 cm)
Stolarka i wykończenie:
– okna PCV trzyszybowe
– drzwi wejściowe antywłamaniowe
– elektryczna brama garażowa sterowana pilotem
– posadzki betonowe
– tynki gipsowe
Dach:
– dwuspadowy, symetryczny (nachylenie 40°)
– konstrukcja krokwiowo-jętkowa
– pokrycie: dachówka betonowa płaska
Instalacje:
– instalacja elektryczna: punkt świetlny w każdym pomieszczeniu + min. 3 gniazda
– instalacja wodna z rur PEX (łazienki, kuchnia)
– kanalizacja sanitarna podłączona do sieci miejskiej
– instalacja grzewcza: ogrzewanie podłogowe + pompa ciepła
– instalacja fotowoltaiczna o mocy 5 kW
Zagospodarowanie terenu:
– zbiornik na wodę deszczową (retencja w obrębie działki)
– utwardzona strefa wejścia i dojazd do garażu (płyty betonowe)
– ogrodzenie ogrodu
– oświetlenie wejścia do budynku
– trawnik z rolki
Zapraszam!
Agnieszka Brodek























